Under Contract
In Development
Listed 109 days ago
126 views
Oyster Bay, NY 11771, USA
Pironi Homes
*This calculator provides an estimate only. It is not financial advice or a guarantee of credit. Actual monthly costs may vary.






Description
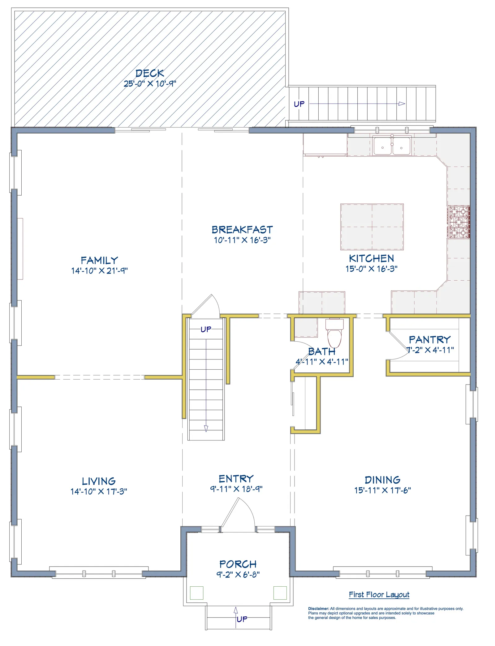
A Wish Come True for Boat & Beach Lovers! Come alone or bring your favorite Broker! The tranquil beauty of Mill Neck in wooded splendor with water views of Mill Neck Creek, Connecticut, prestigious Centre Island and the Village of Bayville is captured in this incomparable residential community of Mill Neck, experience its prestige, personality & its deep sense of history and charm. This home is steps away from a private beach, within minutes of Oyster Bay Village where you will find delightful boutiques and restaurants with a one hour commute to Manhattan. Enjoy the many golf courses, Theodore Roosevelt Park, Marinas and so much more. Explore the Gold Coast of Long Island in this luxurious colonial boasting 3,561 total sq. ft. to be built with Italian Craftsmanship. This open concept home features a 2 story entry foyer, large family room with a fireplace, kitchen with breakfast area, formal dining room and living room. Step out onto the rear deck where the stunning views of Mill Neck Creek, Connecticut, Centre Island and the Village of Bayville can be enjoyed. The second floor leads to 3 family bedrooms, laundry room, full bath, oak floors, large closets and windows. Enter your private oasis with a spa-like bath, double vanity, and his & hers walk-in closets. Wake up to the morning sun & view the crystal waters. Come and customize this home with a yesterday feeling and modern flair. Built by Pironi Homes with 50 years experience achieving quality, craftsmanship and integrity.
Resources
Home Amenities
Chef's Kitchen
Fireplace
Second-floor Laundry
Smart Home Automation
Walk-in Pantry
Walk-in Closets
Water Views
Details
Interior
Bedrooms & Bathrooms
Bedrooms: 4
Full bathrooms: 2
1/2 bathrooms: 1
Heating
Hot water coil
Cooling
Central Air
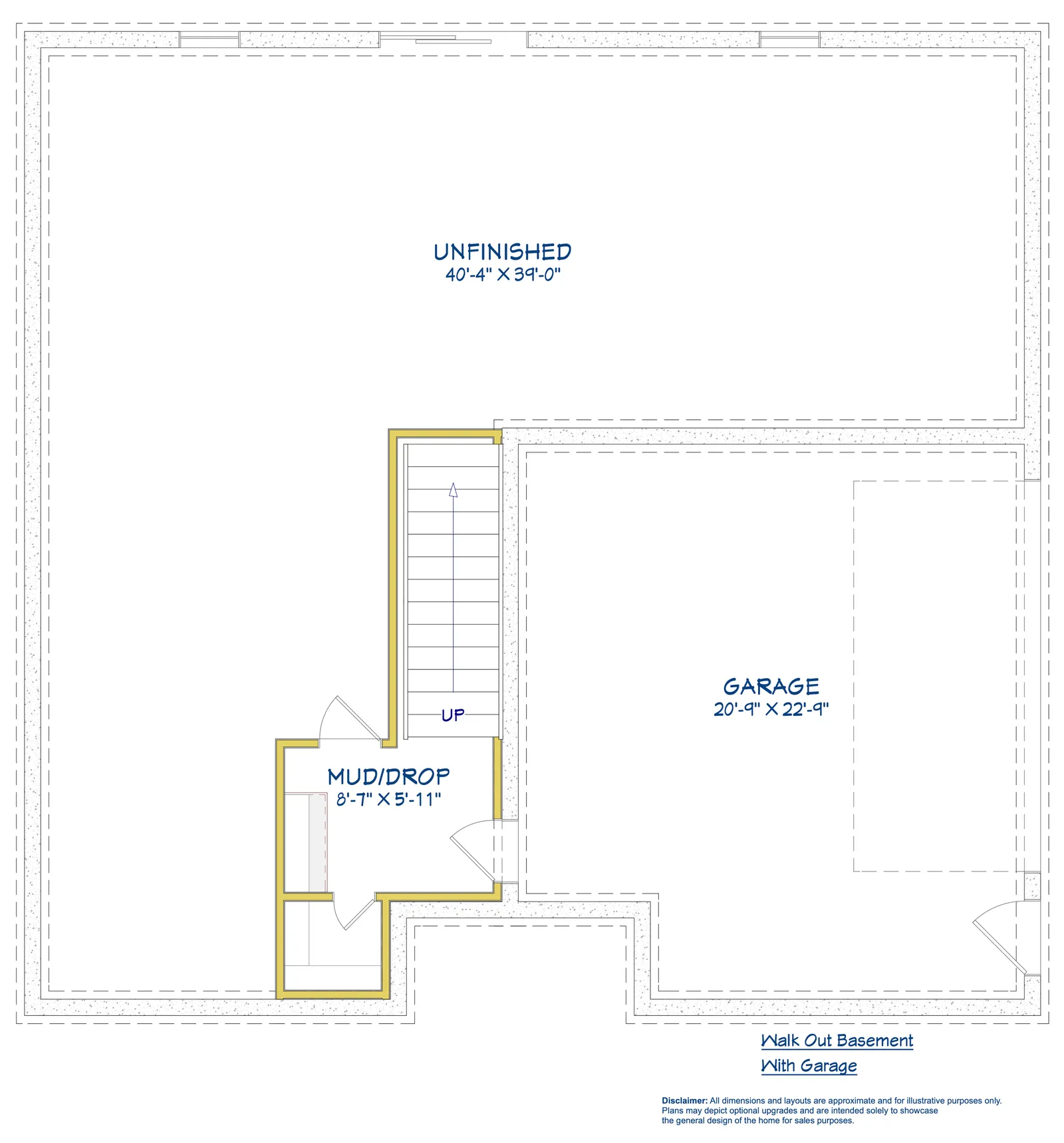
Lower Level
Walk out basement
Primary Bedroom
Primary suite
Primary bathroom
2 walk in closets
Property
Dimensions
Home size: 8000 Sq.Ft
Garages: 2
Construction
Condition
New
Materials
Wood Stick construction
Poured foundation
Vynal siding
Stone front
Utilities
Sewer
Ceptic
Water
Public
Gas
Heating
Cooking
Taxes And Fees
HOA
$200 +/-
Taxes
Unknown